山口工務所株式会社

 

施工例

タイトル

本当のパノラマと土間収納のあるお部屋

お部屋の詳細

埼玉県ふじみ野市
築 24 年 床面積 110 ㎡

ポイント

パノラマの眺望をどこからでも楽しめ、ご夫婦のライフスタイルと二人のテイストを表現したお部屋

ポイント

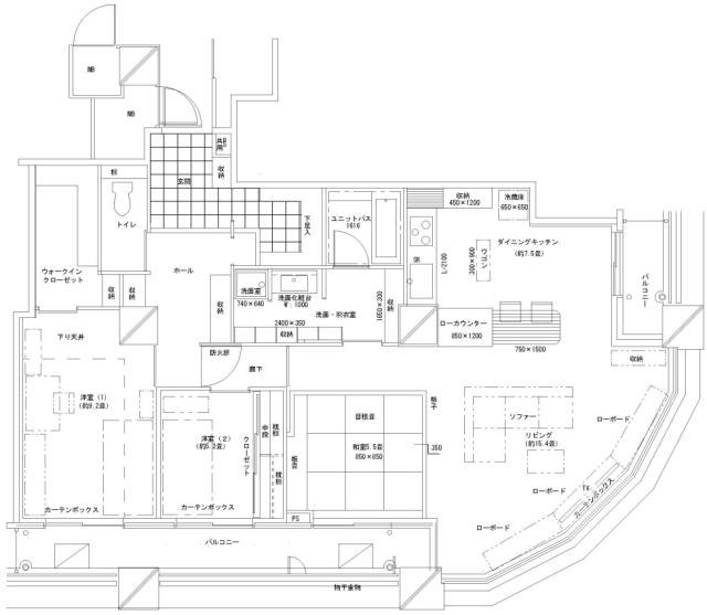
改装前
改装前

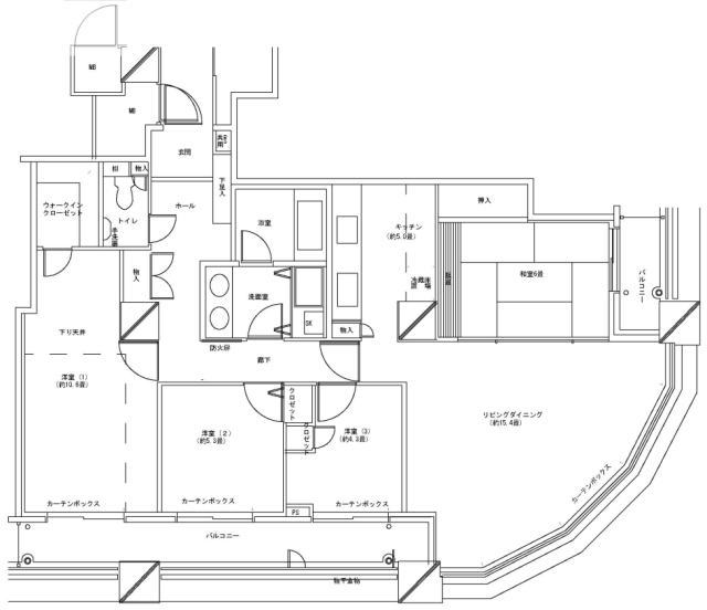
改装後
改装後

土間収納

和室

まずはご相談ください
Copyright ©Yamaguchi Koumusho Co.,Ltd. AllRightsReserved.